LS型螺旋输送机优势特点
新乡奥创机械厂专业生产LS型螺旋输送机,螺旋输送机可分有轴螺旋与无轴螺旋;奥创机械厂主要生产的是有轴螺旋输送机;外壳体、叶片的材质:碳钢居多,特殊物料采用不锈钢;咨询LS螺旋输送机价格,需用户提供参数:如物料名、粒度、物料温度、输送量、输送长度,才好提供用户价格和报价;
LS型螺旋输送机应用领域
LS型螺旋输送机适用于细干粉、小颗粒、或有30%含水了量的颗粒物、小块状物料等,LS型螺旋输送机输送能力大,运输稳定、不易卡料、输送均匀、广泛应用在化工、建材、冶金、矿山、电力等部门;LS型螺旋输送机不宜输送黏性物料,如污泥、生活垃圾等缠绕性的物料,因奥创机械厂不生产无轴螺旋输送机,只生产有轴螺旋输送机。

LS螺旋输送机产品介绍
LS螺旋输送机也就是U型螺旋输送机,是GX螺旋输送机的升级版,螺旋输送机可分有轴螺旋与无轴螺旋;有轴螺旋输送机;外壳体、叶片的材质:碳钢居多,特殊物料采用不锈钢;咨询LS螺旋输送机价格,需用户提供参数:如物料名、粒度、物料温度、输送量、输送长度,才好提供用户价格和报价;LS型螺旋输送机根据输送物料颗粒度、输送量、输送距离,进行合理选型设计生产,做到不卡料、不架拱、出料顺畅。
LS螺旋输送机的电机驱动可以用直连式,也可以采用链条连接式LS型螺旋输送机是GX型螺旋输送机的更新换代产品,是散装粉状物料的理想输送设备,它提供的封闭式输送,能防止粉状物料溢出、扬尘,也是环保非常实用的环保设备;LS型螺旋输送机可以从一个或多个入口添加物料,使用非常方便。LS型螺旋输送机既可以水平输送物料也可以倾斜输送物料,当空间允许,这是一个非常经济的提升输送设备,但是随着倾角的增加,处理量会下降。
LS型螺旋输送机的应用范围
LS型螺旋输送机适用于细干粉、小颗粒、或有30%含水了量的颗粒物、小块状物料等,LS型螺旋输送机输送能力大,运输稳定、不易卡料、输送均匀、广泛应用在化工、建材、冶金、矿山、电力等部门;LS型螺旋输送机不宜输送黏性物料,如污泥、生活垃圾等缠绕性的物料,因奥创机械厂不生产无轴螺旋输送机,只生产有轴螺旋输送机。
螺旋输送机可以输送炭黑、石墨粉、石灰粉、化肥、石子等
LS型螺旋输送机工作环境温度通常为-20~40℃,输送物料的温度一般为-20~80℃,LS型螺旋输送机适宜水平和小倾角布置,倾角以不超过15°为宜,如倾斜角度过大请选用GX系列管式螺旋输送机,或与我公司技术部门联系进行单独设计。
一、LS型螺旋输送机有七种规格:螺旋直径:150、200、250、300、400、500、600;
二、 十种标准转数(数/分):20、30、35、45、60、75、90、120、150;
三、 螺旋机长度:从3米起到30米止,输送机长度可自由选择。
咨询LS型螺旋输送机的用户,在采购前提供以下参数:
1、如果你是更换旧LS型螺旋输送机,需要提供法兰(圆形或方形),法兰(外径、内径、法兰孔中心距),进出料口距离尺寸,是否有轴或无轴等。如果是新安装U型螺旋输送机可以忽略这些参数。
2、需要提供用户安装现场工况、物料名称、物料粒度、物料是否有硬度、物料是否有粘稠度、物料温度、进出口距离及输送量等一些参数,奥创机械厂根据参数为用户提供合理选型,以达到需求。
LS型螺旋输送机价格取决于安装工况、法兰口径尺寸大小、进出口距离、输送量大小、物料温度、物料颗粒度大小、物料是否有腐蚀性(是否采用不锈钢材质)、物料含水量、安装倾斜角度、输送长度等参数。我们可以根据用户的参数来选择U型螺旋输送机的壳体,轴等部位的材质(碳钢或不锈钢),材质是影响U型螺旋输送机价格的因素之一;根据用户的输送量来配置电机、减速机功率大小及输送管的直径;这两项是影响U型螺旋输送机的价格主要因素。
煤颗粒专用U型螺旋输送机材质
1、壳体:碳钢为主、其次不锈钢
2、螺旋主轴:45号钢、可做(不锈钢)
3、螺旋叶片:碳钢、可做(不锈钢)
4、吊轴承架:铸铁
5、两头端盖:碳钢、可做(不锈钢)
6、联轴器:45号钢
7、减速机壳体:铸铁
8、底座:碳钢
9、壳体衬板:耐磨板
LS型螺旋输送机结构
驱动部位:三项异步电机或变频电机;
减速机部位:摆线针轮减速机或齿轮减速机;
联动部位:直连式联轴器或链轮链条;
箱体部位:壳体或加装衬板、螺旋轴(螺旋叶片)、吊轴承、两端轴承、进出料口、壳体盖板等;
底部:底座、支架。
螺旋输送机可以设计或卸箱是粘上尘垢的机件加以清理;
相邻机壳法兰面应链接平整、密合、机壳内表面接头处错位偏差不超过2mm;
机壳法兰间允许垫石棉带,调整机壳和螺旋体长度的积累误差;
LS型螺旋输送以后,均应使之着实后再拧地脚螺栓。所有连接螺钉均应拧紧至可靠的程度;
LS型螺旋输送机进出料口现场安装应使进出料口的法兰支撑面与螺旋机的本体的轴线平行,与相连接的法兰应紧密贴合,不得有间隙;
LS型螺旋输送机装妥以后,应检查各存油处是否有足够的润滑油,在进行连续4h以上的无负荷试车以后,应检查螺旋机装配的正确性,如果发现不应超过额定功率的30%;
除尘器在负压下运行螺旋输送机各连接处无明显漏风。
煤颗粒专用LS型螺旋输送机运行注意事项
1、LS型螺旋输送机在开车前应认真检查机槽内有无剩余粉尘和杂物,若有,则应及时清理干净。此外还应检修进出口是否畅通,如发现有堵塞现象,请及时清理干净;
2、加料必须均匀,并保持一定的装满程度;
3、进料口应加筛网,严防金属保证设备下一次启动时能处于空载运行状态;
6、当运行中途停机时,应尽可能卸净机体内的物料未能及时排净,此时若再次启动出现困难时,需要将机体内的物料取出后才能启动运行;
7、定期检查螺旋叶片的磨损情况,当发现磨损严重时可采用补焊或更换新件。此外还应经常检查轴承的磨损情况,发现问题及时更换;
8、输送机的各润滑部位应严格按要求进行润滑,并经常保持输送机内部轴承的润滑油充足和定期更换;
9、LS型螺旋输送机在运转过程中,一旦发出刺耳的噪音时,应及时排查;
10、LS型螺旋输送机两头轴承要严格密封,防止粉尘卡轴现象;
11、密切注意监视超过允许的温度,大块及含水量的物料进入机体,以防止损坏设备。
煤颗粒专用LS型螺旋输送机技术参数
规格型号 | 100 | 160 | 200 | 250 | 315 | 400 | 500 | 630 | 800 | 1000 | 1250 |
螺旋直径(mm) | 100 | 160 | 200 | 250 | 315 | 400 | 500 | 630 | 800 | 1000 | 1250 |
螺距(mm) | 100 | 160 | 200 | 250 | 250 | 355 | 400 | 450 | 500 | 560 | 630 |
转速(r/min) | 140 | 112 | 100 | 90 | 80 | 71 | 63 | 50 | 40 | 32 | 25 |
输送量(m3/h) | 2.2 | 7 | 13 | 22 | 31 | 62 | 98 | 140 | 200 | 280 | 380 |
转速(r/min) | 112 | 90 | 80 | 71 | 63 | 56 | 50 | 40 | 32 | 25 | 20 |
输送量(m3/h) | 1.7 | 6 | 10 | 18 | 24 | 49 | 78 | 112 | 160 | 220 | 306 |
转速(r/min) | 90 | 71 | 63 | 56 | 50 | 45 | 40 | 32 | 25 | 20 | 16 |
输送量(m3/h) | 1.4 | 5 | 8 | 14 | 19 | 39 | 62 | 90 | 126 | 176 | 245 |
转速(r/min) | 71 | 50 | 50 | 45 | 40 | 36 | 32 | 25 | 20 | 16 | 13 |
输送量(m3/h) | 1.1 | 3.1 | 6.2 | 11 | 15.4 | 31 | 50 | 77 | 102 | 140 | 198 |
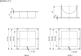
煤颗粒专用 LS螺旋输送机尺寸图



参数 | LS160 | LS200 | LS250 | LS315 | LS400 | LS500 | LS630 | LS800 | LS1000 | LS1250 |
A1 | 246 | 306 | 356 | 444 | 528 | 658 | 794 | 960 | 1160 | 1410*1160 |
A2 | 226 | 272 | 330 | 394 | 492 | 608 | 752 | 888 | 1090 | 1338*1090 |
A3 | 180 | 220 | 270 | 334 | 420 | 524 | 660 | 800 | 1000 | 1250*1000 |
H1 | 75 | 100 | 120 | 140 | 160 | 160 | 180 | 180 | 200 | 200 |
δ1 | 3 | 3 | 3 | 4 | 4 | 4 | 6 | 6 | 8 | 8 |
n1 | 8 | 8 | 8 | 8 | 8 | 8 | 8 | 16 | 20 | 22 |
φ1 | 9 | 9 | 9 | 13 | 13 | 13 | 17 | 14 | 18 | 18 |
B1 | 252 | 312 | 374 | 442 | 540 | 666 | 806 | 960 | 1160 | 1410*1160 |
B2 | 226 | 272 | 330 | 402 | 496 | 608 | 752 | 888 | 1090 | 1338*1090 |
B2 | 186 | 226 | 276 | 342 | 432 | 532 | 668 | 800 | 1000 | 1250*1000 |
H2 | 135 | 165 | 195 | 225 | 280 | 340 | 430 | 520 | 630 | 760 |
δ2 | 3 | 3 | 4 | 4 | 4 | 4 | 6 | 6 | 8 | 8 |
n2 | 8 | 8 | 8 | 8 | 8 | 8 | 8 | 16 | 20 | 22 |
φ2 | 9 | 9 | 9 | 13 | 163 | 17 | 17 | 14 | 18 | 18 |
R | 93 | 113 | 138 | 171 | 216 | 266 | 334 | 419 | 522 | 647 |