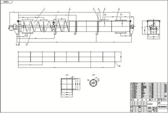
LS螺旋输送机组成:螺旋输送机通常由螺旋输送机本体、进出装置、驱动装置三大部分组成。 螺旋输送机本体由头节、中间节、尾节三部分组成。一般情况下,出厂总装时将螺旋输送机中间节按长度长短依次排列,最长的中间节靠近头节,相同长度的中间节则挨在一起,如果有特殊要求,则在订货时给出排列顺序。 在螺旋输送机头节内装有支推轴承承受轴向力,在中间节和尾节内装有用轴承支承螺旋轴,此外,在螺旋输送机尾节内还装有可轴向移动的径向轴承以补偿螺旋轴长度的误差和适应温度的变化。
螺旋输送机螺旋面的形式有实体螺旋(S制法)和带式螺旋(D制法)两种。各螺旋轴之间采用法兰式联接, 保证了联接轴的互换性,便于维修。 螺旋输送机机盖为瓦片式并用盖扣夹紧在机壳上,若需改进密封性能,用户可自行在机盖与机壳间加防水粗帆布。 螺旋输送机进、出料装置有进料口,方型出料口,手推式出料口,齿条式出料口四种,由用户在使用现场在机体上开口焊接。布置螺旋输送机进、出料口位置时应注意保证料口至端部的距离,同时避免料口与吊轴承加油杯、机壳联接法兰、底座等相碰。
LS型螺旋输送机分类:
按螺旋输送机驱动方式分:
C1制法--螺旋输送机长度小于35m时,单端驱动。
C2制法--螺旋输送机长度大于35m时,双端驱动。
按螺旋叶片形式分:
S制法--实体螺旋叶片
D制法--带式螺旋叶片
J制法--浆叶式螺旋叶片
按螺旋输送机中间吊轴承种类分:
M1--为滚动吊轴承。采用80000型密封轴承,轴盖上另有防尘密封结构,常用在不易加油、不加油或油对物料有污染的地方,密封效果好,吊轴承寿命长,输送物料温度t≤80℃。
M2--为滑动吊轴承。设有防尘密封装置,常用有铸铜瓦,MC耐磨尼龙瓦,还有用于常用在输送物料温度比较高(t>80℃)或输送液状物料的铜基石墨少油润滑瓦。
LS螺旋输送机参数:

LS螺旋输送机图纸:

上一篇: 振动输送机结构
下一篇: 大倾角带式输送机参数